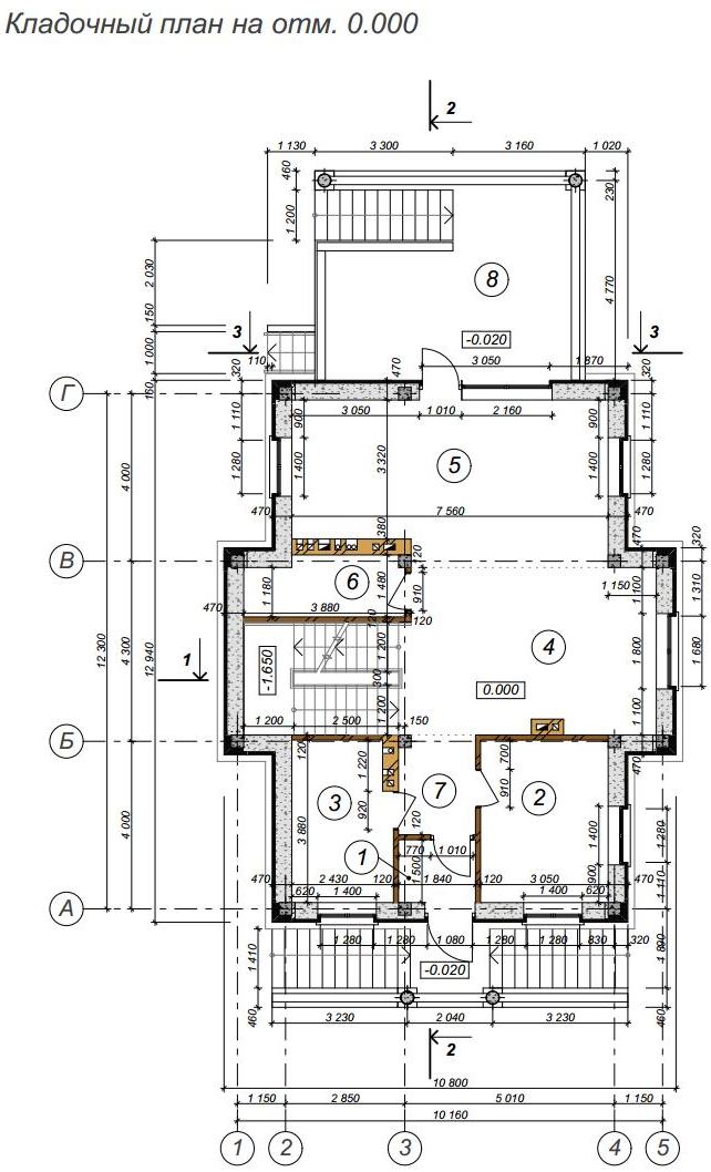
Проект загородного дома № 414 площадью 265,8 м2
265.8 м2
46080 руб.
Подробнее
Планировки
Характеристики
| Тип дома | Дома из кирпича и пеноблоков |
| Площадь | 265.8 |
| Этажей | 2 |
| Гараж | без гаража |
| Мансарда | Нет |
| Материал кровли | Битумная черепица |
| Материал стен | Пеноблок |
| Фундамент | Плита |
| Цокольный этаж | Да |
